Продуманная планировка Вашей квартиры
Собираю информацию
Готовлю планировки
Дизайн проект
Проводим бриф, в котором я собираю информацию о Ваших предпочтениях и ожиданиях от планировки
Я готовлю 3 варианта планировочных решений, Вы выбираете итоговый вариант
Определяемся со стилем и готовим фотореалистичные 3D визуализации интерьера
1
2
3
Подготовлю проект под Ваш бюджет
Услуги
3D визуализации
По всей России
Планировочное решение
По всей России
Самара / Санкт-Петербург
Реализация
Квартира, в которой каждый квадратный метр используется по названачению
350 руб. / м
2
Подготовим визуализации, которые будут соответствовать:
Техническим нормам
Планируемому бюджету на ремонт
А главное - Вашим пожеланиям
+ 1 240 руб. / м
2
Сделаем так, чтобы ремонт мечты был не только на красивых визуализациях, но и в Вашей квартире
Нажимая на кнопку «Отправить» Вы соглашаетесь с политикой конфиденциальности
Проект
Самара
ЖК Арго
Реализация
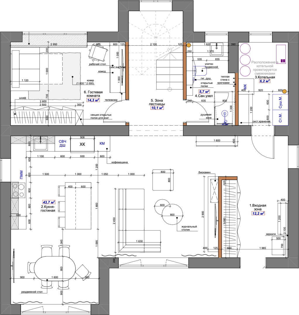
Обмерочный план

План расстановки мебели

План сантехники

План пола

План потолка

План освещения

План привязки освещения

План расстановки розеток

Развертка кухни-гостиной

Развертка входной зоны

Развертка ванной комнаты

Развертка спальни

Схема конструкции

Визуализации
Состав проекта:
Обмерочный план

План расстановки мебели

План сантехники

План пола

План потолка

План освещения

План привязки освещения
План расстановки розеток

Развертка кухни-гостиной

Развертка входной зоны

Развертка ванной комнаты

Развертка спальни

Схема конструкции

Визуализации
Проект
Самара
Степана Разина
Реализация
Обмерочный план

План расстановки мебели

План сантехники

План пола

План потолка

План освещения

План привязки освещения

План расстановки розеток

Развертка кухни-гостиной

Развертка входной зоны

Развертка ванной комнаты

Развертка спальни

Схема конструкции

Визуализации
Состав проекта:
Обмерочный план

План расстановки мебели

План сантехники

План пола

План потолка

План освещения

План привязки освещения
План расстановки розеток

Развертка кухни-гостиной

Развертка входной зоны

Развертка ванной комнаты

Развертка спальни

Схема конструкции

Визуализации
Проект
пос. Гранный
Частный дом
Реализация
Обмерочный план

План расстановки мебели

План сантехники

План пола

План потолка

План освещения

План привязки освещения

План расстановки розеток

Развертка ванной комнаты

Развертка спальни

Схема конструкции

Визуализации
Состав проекта:
Обмерочный план

План расстановки мебели

План сантехники

План пола

План потолка

План освещения

План привязки освещения
План расстановки розеток

Развертка кухни-гостиной

Развертка входной зоны

Развертка ванной комнаты

Развертка спальни

Схема конструкции

Визуализации
Made on
Tilda